Trilocale in vendita

Cafasse, Via torino
€ 115.000
3 locali 3 locali
70 Mq 70 Mq
1 bagno 1 bagno

Trilocale in vendita

Cafasse, Via torino

Descrizione annuncio

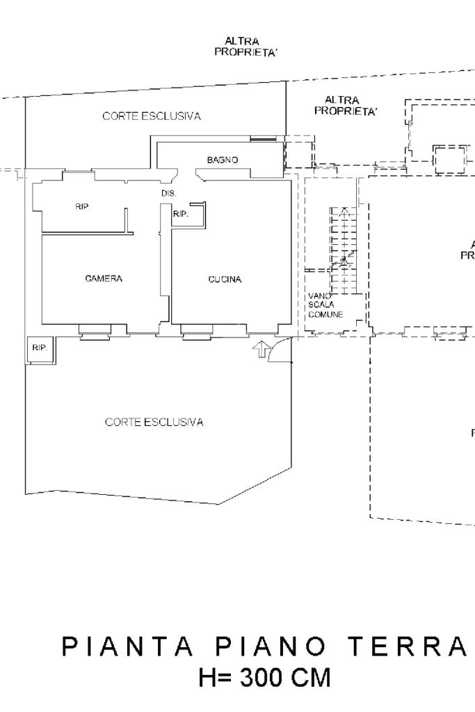
CAFASSE appartamento al piano terra di cucina, camera matrimoniale e cameretta con giardino privato e box, ristrutturato recentemente e subito abitabile.

L'immobile, ristrutturato nel 2008, è composto da ingresso su soggiorno con angolo cottura a vista, camera matrimoniale, una cameretta singola e il bagno con doccia, e dispone di due aree cortile private una fronte casa e una sul retro. La casa inoltre dotata di canna fumaria per cui è possibile installare stufa o camino.

Il riscaldamento è autonomo a metano con radiatori e caldaia a condensazione, non c'è amministratore e non ci sono spese comuni salvo la suddivisione del consumo di acqua.

La posizione dell'appartamento è strategica, con facile accesso ai principali servizi del paese, rendendolo una scelta ideale per chi desidera vivere in un contesto tranquillo senza rinunciare alle comodità urbane. La casa inoltre ha un'ottima espsizione al sole.

Mostra tutto

Nelle vicinanze

Trasporto pubblico Trasporto pubblico
Mathi
Mathi
2,3 Km
Villanova - Grosso
Villanova - Grosso
2,8 Km
Fiano (Scuole)
Fiano (Scuole)
2,4 Km
Trasporto pubblico
2,5 Km
Farmacia Farmacia
Farmacia Frassà
630 m
San Bernardo
2,5 Km
Farmacia Bonardi Dott. Lorenzo
2,5 Km
Farmacia
2,5 Km
Supermercati Supermercati
CRAI La Canavesana S.n.c.
2,8 Km
Negozi Negozi
Benzo
2,8 Km
Bar Bar
Massa Micon
2,4 Km
Ristoranti Ristoranti
La Cadrega
390 m
Luna Rossa
2,5 Km
I faraglioni
2,5 Km
Quattro Mori
2,5 Km
Pizzeria Le Braci
2,6 Km
Mostra tutto

Caratteristiche

Rif.:
61163026
Piano:
Terra di 3
Totale piani:
3
Box:
1
Camere da letto:
2
Arredamento:
Assente
Mostra tutto
Prezzo Prezzo
€ 115.000
Rata mutuo Rata mutuo
€ 537 / mese
Spese annue Spese annue
€ 0
Proponi il tuo prezzoProponi il tuo prezzo

Classe Energetica

D
D
D
D
D
D
D
D
D
EP globale non rinnovabile:
220.33 kW h/m² anno
EP globale rinnovabile:
1.34 kW h/m² anno
EP invernale del fabbricato:
EP estiva del fabbricato:
Anno di costruzione:
1960
Riscaldamento:
Autonomo
Tipo impianto:
A radiatori
Tipo alimentazione:
Metano

Ti interessa visionare l'immobile?

Fissa un appuntamento  Fissa un appuntamento

Richiedi informazioni

Clicca su Leggi per aprire l'informativa
* Questi campi sono obbligatori

Calcola il tuo mutuo

Semplice e senza impegno
Anticipo

( % )
Mutuo

( % )

pochi semplici passi

inserisci i tuoi dati
Questionario completato
Grazie per aver richiesto un appuntamento senza impegno con un nostro Consulente del Credito e Assicurativo.

Hai inserito correttamente tutti i dati necessari e a breve riceverai una e-mail con un link da convalidare per inviare i tuoi dati.
Affiliato
Studio Robassomero Sas
Via Don Marchisone, 1 10070 Robassomero (TO)

Il nostro staff


  • Daniele Manolio
    Affiliato

  • Alberto Calmasini
    Collaboratore

  • Margherita D'Agostino
    Coordinatrice
Via Don Marchisone, 1 10070 Robassomero (TO)
Zona: Robassomero-Fiano-Cafasse-Villanova Canavese-Varisella-Vallo torinese-Monasterolo
Mostra su mappa
Orari: LUN-VEN dalle 9.00 alle 12.30 e dalle 14.30 alle 20.00 SABATO 9.00-12.30 e 14.30-19.00
Affiliato
Studio Robassomero Sas
Via Don Marchisone, 1 10070 Robassomero (TO)

2026 Tecnocasa Franchising S.p.A. - P. IVA 08365160152 - Via Monte Bianco 60/A 20089 Rozzano (MI). Ogni agenzia ha un proprio titolare ed è autonoma. Privacy policy | Policy utilizzo | Cookie policy