Bifamiliare in vendita

Cafasse, Via San Firmino
€ 235.000
8 locali 8 locali
321 Mq 321 Mq
3 bagni 3 bagni

Bifamiliare in vendita

Cafasse, Via San Firmino

Descrizione annuncio

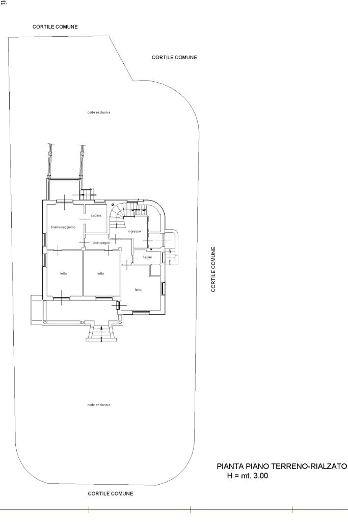
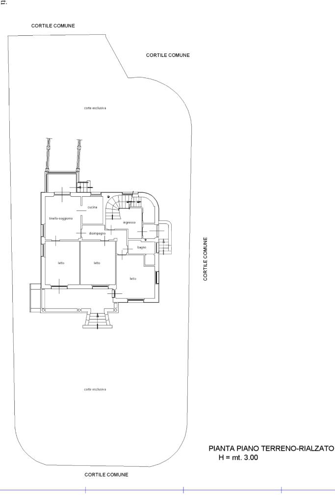
CAFASSE: VILLA BIFAMILIARE CON 400 MQ DI GIARDINO PRIVATO, parzialmente ristrutturata e subito abitabile. La casa è stata costruita dal costruttore per se stesso (per cui seguendo i migliori criteri costruttivi dell’epoca). Questa proprietà offre ampi spazi abitativi, ideali per chi cerca una residenza accogliente e funzionale. Al piano terreno-rialzato di 115 mq, ingresso, soggiorno, cucina, 3 camere, bagno, ampio terrazzo coperto di 16 mq con tende parasole motorizzate, ed altro terrazzo verandato; tramite un ampio vano scala si accede al piano primo di 115 mq, composto da ampio ingresso, un grande salone e cucina a vista in muratura/legno (compresa nel prezzo), 2 camere, bagno, terrazzo di 16 mq con tende parasole motorizzate, altro terrazzo e balcone. Gli infissi sono in legno con doppi vetri ed alcune tapparelle sono elettriche. Sempre tramite scala interna si accede al piano interrato di 115 mq, composto da ampia taverna, locale ad uso cucina, cantina, bagno. Tutta la casa è circondata da giardino e cortile privato. Adiacente abbiamo altro fabbricato alto 4,40 metri, composto al piano terra da autorimessa, locale deposito soppalcato, disimpegno e bagno.

IL PROPRIETARIO VALUTA ANCHE PERMUTA CON APPARTAMENTO DI 60-80 MQ IN ZONA LANZO,BALANGERO,MATHI, VILLANOVA

NELLA SEZIONE PLANIMETRIE DEL NOSTRO SITO È DISPONIBILE LA PLANIMETRIA 3D DELL'IMMOBILE.

La proprietà è circondata da un giardino privato fronte casa e di un cortile sul retro, che offrono uno spazio esterno riservato e tranquillo, perfetto per momenti di relax o per attività all'aperto. La posizione della villa, nel cuore di Cafasse, consente di godere della tranquillità di un contesto residenziale, pur essendo a breve distanza dai principali servizi e collegamenti.

Questa villa rappresenta un'opportunità interessante per chi desidera investire in una casa con carattere e potenziale.

Mostra tutto

Nelle vicinanze

Trasporto pubblico Trasporto pubblico
Mathi
Mathi
2,5 Km
Villanova - Grosso
Villanova - Grosso
2,8 Km
Fiano (Scuole)
Fiano (Scuole)
2,0 Km
Fiano (Centro)
Fiano (Centro)
2,2 Km
Farmacia Farmacia
Farmacia Frassà
1,0 Km
Farmacia
2,2 Km
San Bernardo
2,4 Km
Farmacia Bonardi Dott. Lorenzo
2,7 Km
Supermercati Supermercati
CRAI La Canavesana S.n.c.
3,0 Km
Negozi Negozi
Benzo
2,9 Km
Bar Bar
Massa Micon
2,3 Km
Ristoranti Ristoranti
La Cadrega
40 m
Quattro Mori
2,4 Km
Primavera
2,5 Km
Luna Rossa
2,7 Km
Pizzeria Le Braci
2,7 Km
Mostra tutto

Caratteristiche

Rif.:
61207461
Piano:
Su più livelli di 3
Totale piani:
3
Box:
1
Balconi:
1
Terrazzi:
3
Mostra tutto
Prezzo Prezzo
€ 235.000
Rata mutuo Rata mutuo
€ 1.114 / mese
Spese annue Spese annue
€ 0
Proponi il tuo prezzoProponi il tuo prezzo

Classe Energetica

D
D
D
D
D
D
D
D
D
EP globale non rinnovabile:
170.90 kW h/m² anno
EP globale rinnovabile:
161.13 kW h/m² anno
EP invernale del fabbricato:
EP estiva del fabbricato:
Anno di costruzione:
1960
Riscaldamento:
Autonomo
Tipo impianto:
A radiatori
Tipo alimentazione:
Metano

Ti interessa visionare l'immobile?

Fissa un appuntamento  Fissa un appuntamento

Richiedi informazioni

Clicca su Leggi per aprire l'informativa
* Questi campi sono obbligatori

Calcola il tuo mutuo

Semplice e senza impegno
Anticipo

( % )
Mutuo

( % )

pochi semplici passi

inserisci i tuoi dati
Questionario completato
Grazie per aver richiesto un appuntamento senza impegno con un nostro Consulente del Credito e Assicurativo.

Hai inserito correttamente tutti i dati necessari e a breve riceverai una e-mail con un link da convalidare per inviare i tuoi dati.
Affiliato
Studio Robassomero Sas
Via Don Marchisone, 1 10070 Robassomero (TO)

Il nostro staff


  • Daniele Manolio
    Affiliato

  • Alberto Calmasini
    Collaboratore

  • Margherita D'Agostino
    Coordinatrice
Via Don Marchisone, 1 10070 Robassomero (TO)
Zona: Robassomero-Fiano-Cafasse-Villanova Canavese-Varisella-Vallo torinese-Monasterolo
Mostra su mappa
Orari: LUN-VEN dalle 9.00 alle 12.30 e dalle 14.30 alle 20.00 SABATO 9.00-12.30 e 14.30-19.00
Affiliato
Studio Robassomero Sas
Via Don Marchisone, 1 10070 Robassomero (TO)

2026 Tecnocasa Franchising S.p.A. - P. IVA 08365160152 - Via Monte Bianco 60/A 20089 Rozzano (MI). Ogni agenzia ha un proprio titolare ed è autonoma. Privacy policy | Policy utilizzo | Cookie policy