Villa a schiera in vendita

Robassomero, Corso italia
€ 298.000
7 locali 7 locali
210 Mq 210 Mq
2 bagni 2 bagni

Villa a schiera in vendita

Robassomero, Corso italia

Descrizione annuncio

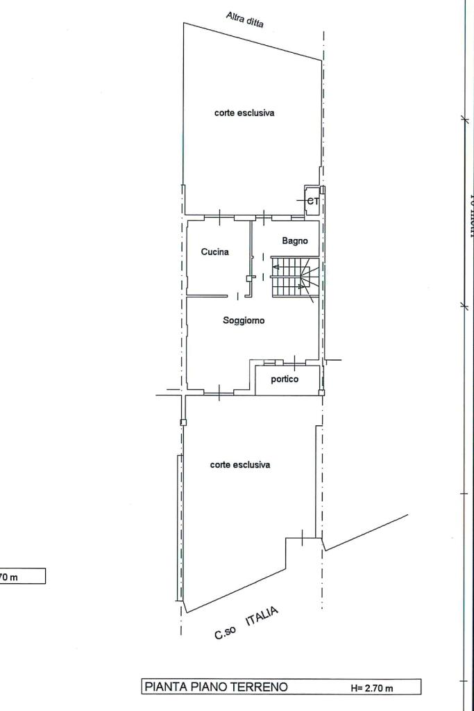
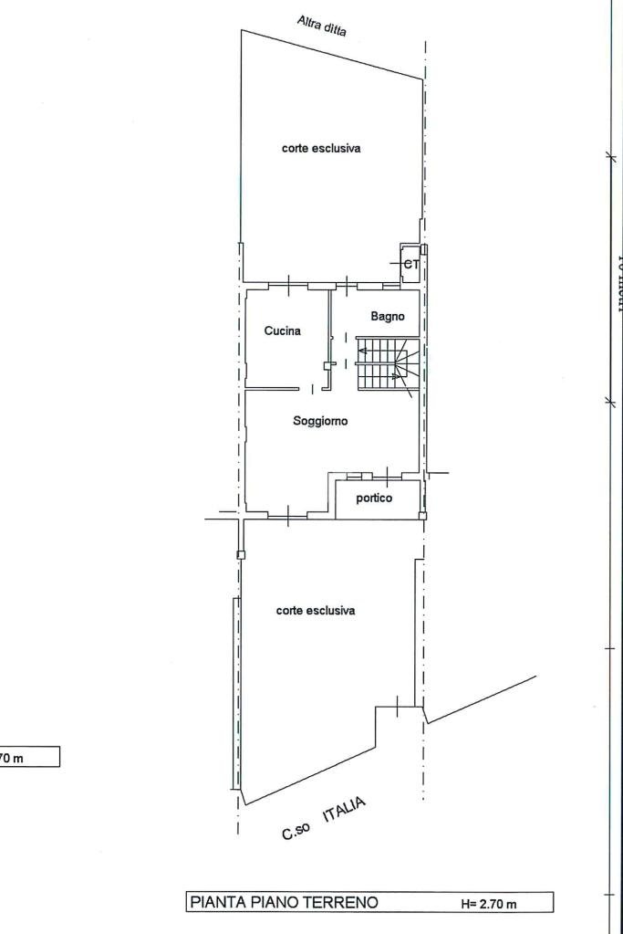
ROBASSOMERO: VILLA A SCHIERA DEL 2005 CON GIARDINO PRIVATO. In zona comoda ai servizi ed alla fermata del bus; composta da piano terreno : ingresso living in soggiorno con camino a pellets, cucina abitabile , bagno con doccia ( appena ristrutturato), giardino privato fronte e retro con parte pavimentata e tenda parasole; al piano primo :disimpegno , 3 camere , ampio bagno con doccia , ripostiglio , 2 balconi; al piano mansardato un locale unico rifinito utilizzabile come ampia camera; al piano interrato: tavernetta, lavanderia, cantina e box auto doppio in lunghezza. La casa presenta le seguenti caratteristiche: aria condizionata ( caldo/freddo) in ogni stanza, serramenti in legno con doppi vetri e zanzariere, impianto fotovoltaico per energia elettrica e termodinamico per acqua calda, impianto di antifurto, riscaldamento autonomo a metano, porte interne nuove, impianto di irrigazione, tende parasole.

Mostra tutto

Nelle vicinanze

Scuole Scuole
Scuole
670 m
Scuola Secondaria di I grado "S. Allende"
670 m
Farmacia Farmacia
San Gregorio
510 m
Supermercati Supermercati
Center 33
940 m
CRAI
1,7 Km
Bar Bar
Sapore di Caffè di Fabio Sottil
610 m
Società Cooperativa Bar
700 m
Ristoranti Ristoranti
Birreria One Route
300 m
Pizzeria Corso Italia
340 m
Ristoranti
380 m
Il Cantuccio
610 m
Mai.A.Letto
2,9 Km
Mostra tutto

Caratteristiche

Rif.:
61203075
Piano:
Su più livelli di 2
Totale piani:
2
Box:
2
Balconi:
2
Camere da letto:
4
Mostra tutto
Prezzo Prezzo
€ 298.000
Rata mutuo Rata mutuo
€ 1.421 / mese
Proponi il tuo prezzoProponi il tuo prezzo

Classe Energetica

Questo immobile è esente da classe energetica
Anno di costruzione:
2005
Riscaldamento:
Autonomo
Tipo impianto:
A radiatori
Tipo alimentazione:
Metano

Ti interessa visionare l'immobile?

Fissa un appuntamento  Fissa un appuntamento

Richiedi informazioni

Clicca su Leggi per aprire l'informativa
* Questi campi sono obbligatori

Calcola il tuo mutuo

Semplice e senza impegno
Anticipo

( % )
Mutuo

( % )

pochi semplici passi

inserisci i tuoi dati
Questionario completato
Grazie per aver richiesto un appuntamento senza impegno con un nostro Consulente del Credito e Assicurativo.

Hai inserito correttamente tutti i dati necessari e a breve riceverai una e-mail con un link da convalidare per inviare i tuoi dati.
Affiliato
Studio Robassomero Sas
Via Don Marchisone, 1 10070 Robassomero (TO)

Il nostro staff


  • Daniele Manolio
    Affiliato

  • Alberto Calmasini
    Collaboratore

  • Margherita D'Agostino
    Coordinatrice
Via Don Marchisone, 1 10070 Robassomero (TO)
Zona: Robassomero-Fiano-Cafasse-Villanova Canavese-Varisella-Vallo torinese-Monasterolo
Mostra su mappa
Orari: LUN-VEN dalle 9.00 alle 12.30 e dalle 14.30 alle 20.00 SABATO 9.00-12.30 e 14.30-19.00
Affiliato
Studio Robassomero Sas
Via Don Marchisone, 1 10070 Robassomero (TO)

2026 Tecnocasa Franchising S.p.A. - P. IVA 08365160152 - Via Monte Bianco 60/A 20089 Rozzano (MI). Ogni agenzia ha un proprio titolare ed è autonoma. Privacy policy | Policy utilizzo | Cookie policy