Bilocale in vendita

Villanova Canavese, Vicolo S. Giuseppe
€ 29.000
2 locali 2 locali
70 Mq 70 Mq
1 bagno 1 bagno

Bilocale in vendita

Villanova Canavese, Vicolo S. Giuseppe

Descrizione annuncio

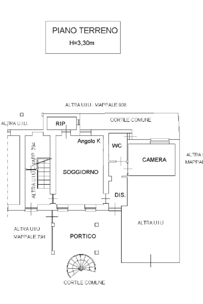
VILLANOVA CANAVESE: IN VILLA TRIFAMILIARE proponiamo in vendita appartamento di 70 mq situato al piano terra TOTALMENTE DA RISTRUTTURARE. L'appartamento si compone di due locali: ingresso, ampio soggiorno con angolo cottura, camera e bagno. All'esterno, un giardino privato e portico di 22 mq offre uno spazio dove rilassarsi. La proprietà include anche due posti auto, una caratteristica preziosa per chi desidera la comodità del parcheggio privato. Questa soluzione abitativa rappresenta un'opportunità interessante per chi desidera vivere in un contesto tranquillo, senza rinunciare alla vicinanza ai servizi essenziali.
Mostra tutto

Nelle vicinanze

Trasporto pubblico Trasporto pubblico
Villanova - Grosso
Villanova - Grosso
620 m
Mathi
Mathi
1,7 Km
Grosso (semaforo Villanova)
Grosso (semaforo Villanova)
720 m
Nole (semaforo Vauda)
Nole (semaforo Vauda)
1,6 Km
Farmacia Farmacia
San Bernardo
60 m
Grosso
1,1 Km
San Vito
1,2 Km
Paschero
1,4 Km
Farmacia Bonardi Dott. Lorenzo
1,9 Km
Supermercati Supermercati
CRAI
670 m
CRAI La Canavesana S.n.c.
2,1 Km
Negozi Negozi
Benzo
780 m
I Monelli
1,4 Km
L'angolo di Lory
1,4 Km
CRAI Everydaymarket
2,8 Km
Bar Bar
Massa Micon
200 m
Ristoranti Ristoranti
Quattro Mori
100 m
Pizzeria Le Braci
1,4 Km
Il Duca Bianco
1,8 Km
Luna Rossa
1,9 Km
Primavera
2,3 Km
Mostra tutto

Caratteristiche

Rif.:
60976015
Piano:
Terra di 3
Totale piani:
3
Posti auto:
2
Camere da letto:
1
Arredamento:
Assente
Mostra tutto
Prezzo Prezzo
€ 29.000
Rata mutuo Rata mutuo
€ 137 / mese
Spese annue Spese annue
€ 0
Proponi il tuo prezzoProponi il tuo prezzo

Classe Energetica

Questo immobile è esente da classe energetica
Anno di costruzione:
1960
Riscaldamento:
Autonomo
Tipo impianto:
A radiatori
Tipo alimentazione:
Metano

Ti interessa visionare l'immobile?

Fissa un appuntamento  Fissa un appuntamento

Richiedi informazioni

Clicca su Leggi per aprire l'informativa
* Questi campi sono obbligatori

Calcola il tuo mutuo

Semplice e senza impegno
Anticipo

( % )
Mutuo

( % )

pochi semplici passi

inserisci i tuoi dati
Questionario completato
Grazie per aver richiesto un appuntamento senza impegno con un nostro Consulente del Credito e Assicurativo.

Hai inserito correttamente tutti i dati necessari e a breve riceverai una e-mail con un link da convalidare per inviare i tuoi dati.
Affiliato
Studio Robassomero Sas
Via Don Marchisone, 1 10070 Robassomero (TO)

Il nostro staff


  • Daniele Manolio
    Affiliato

  • Alberto Calmasini
    Collaboratore

  • Margherita D'Agostino
    Coordinatrice
Via Don Marchisone, 1 10070 Robassomero (TO)
Zona: Robassomero-Fiano-Cafasse-Villanova Canavese-Varisella-Vallo torinese-Monasterolo
Mostra su mappa
Orari: LUN-VEN dalle 9.00 alle 12.30 e dalle 14.30 alle 20.00 SABATO 9.00-12.30 e 14.30-19.00
Affiliato
Studio Robassomero Sas
Via Don Marchisone, 1 10070 Robassomero (TO)

2026 Tecnocasa Franchising S.p.A. - P. IVA 08365160152 - Via Monte Bianco 60/A 20089 Rozzano (MI). Ogni agenzia ha un proprio titolare ed è autonoma. Privacy policy | Policy utilizzo | Cookie policy