Casa indipendente in vendita

Villanova Canavese, Via quarello
€ 199.000
7 locali 7 locali
460 Mq 460 Mq
2 bagni 2 bagni

Casa indipendente in vendita

Villanova Canavese, Via quarello

Descrizione annuncio

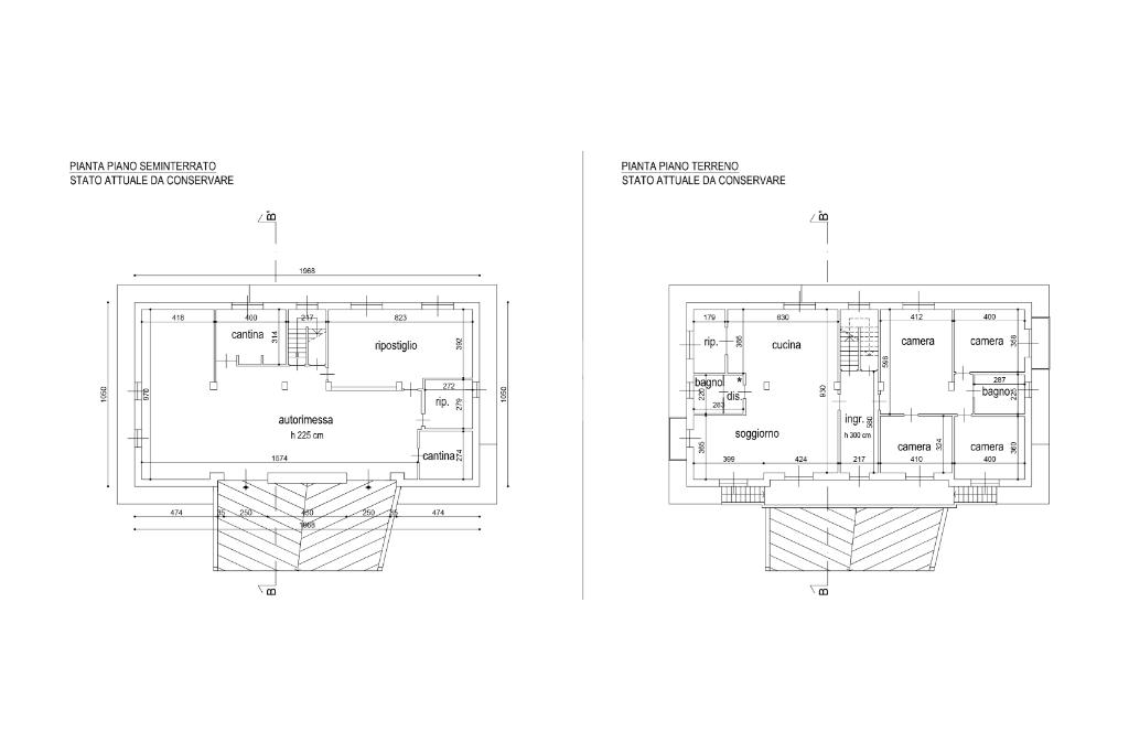
VILLANOVA CANAVESE villa indipendente da ristrutturare con parco di 4000mq, 205mq di spazio abitativo su un unico livello e possibilità di recuperarne altrettanto al piano primo.

L'immobile si trova in zona tranquilla immersa nel verde nell'area tra Villanova e Robassomero. La proprietà è inserita all'interno di un ampio prato privato di circa 4000mq liberi e dispone di un altro lotto di terreno privato fronte strada di circa 2800mq. L'abitazione è disposta su due piani più interrato. Al piano interrato si trovano un'autorimessa con doppio accesso carraio, tre vani cantina e una tavernetta con angolo bar rivestito in pietra. Al piano rialzato si trova la parte abitativa, disposta correntemente in due appartamenti separati dal vano scala centrale. Il primo alloggio ha ingresso su zona giorno living di salone con cucina abitabile a vista, una camera matrimoniale con cabina armadi e un bagno, l'altro ha ingresso su soggiorno, cucina abitabile, due camere e bagno. Al piano primo si trova un vano unico grezzo potenzialmente recuperabile a uso abitativo di 200mq utili. Lo spazio interno è pienamente personalizzabile data l'assenza di murature portanti, così come la divisione tra i due appartamenti. È possibile realizzare da una a quattro unità abitative completamente indipendenti, volendo recuperando anche il piano primo.

All'interno della proprietà si trova anche un fabbricato uso deposito su due piani con tre locali al piano terra e una tettoia aperta al primo piano.

L'immobile è stato costruito negli anni '60 e necessita di lavori di ristrutturazione, ma le fondamenta e il tetto sono in ottime condizioni. Non è presente fognatura in zona per cui gli scarichi vanno gestiti tramite fossa biologica. Il metano non è correntemente allacciato ma è presente la condotta su strada. Al momento il riscaldamento è gestito con caldaia a GPL. L'orientamento dell'immobile con tetto a falda unica esposto a sud-ovest rendono impianti fotovoltaico e/o solare termico un'ottima scelta.

La proprietà si presta sia per abitazione per più nuclei familiari sia eventualmente come investimento vista la superficie ampia e la possibilità di creare multiple unità abitative in ottica di messa a reddito o di rivendita.

Mostra tutto

Nelle vicinanze

Trasporto pubblico Trasporto pubblico
Villanova - Grosso
Villanova - Grosso
2,3 Km
Mathi
Mathi
2,6 Km
Fiano (Scuole)
Fiano (Scuole)
2,2 Km
Fiano (Centro)
Fiano (Centro)
2,2 Km
Farmacia Farmacia
San Bernardo
1,7 Km
Farmacia Frassà
2,0 Km
Farmacia
2,2 Km
San Vito
2,6 Km
Grosso
2,7 Km
Supermercati Supermercati
CRAI
2,4 Km
Negozi Negozi
Benzo
2,4 Km
I Monelli
2,9 Km
L'angolo di Lory
3,0 Km
Bar Bar
Massa Micon
1,5 Km
Ristoranti Ristoranti
La Cadrega
1,1 Km
Primavera
1,5 Km
Quattro Mori
1,7 Km
Pizzeria Le Braci
2,6 Km
Luna Rossa
2,8 Km
Mostra tutto

Caratteristiche

Rif.:
61207000
Piano:
Su più livelli
Box:
4
Balconi:
6
Camere da letto:
3
Condizionamento:
Assente
Mostra tutto
Prezzo Prezzo
€ 199.000
Rata mutuo Rata mutuo
€ 943 / mese
Spese annue Spese annue
€ 0
Proponi il tuo prezzoProponi il tuo prezzo

Classe Energetica

Questo immobile è esente da classe energetica
Anno di costruzione:
1960
Riscaldamento:
Autonomo
Tipo impianto:
A radiatori
Tipo alimentazione:
GPL

Ti interessa visionare l'immobile?

Fissa un appuntamento  Fissa un appuntamento

Richiedi informazioni

Clicca su Leggi per aprire l'informativa
* Questi campi sono obbligatori

Calcola il tuo mutuo

Semplice e senza impegno
Anticipo

( % )
Mutuo

( % )

pochi semplici passi

inserisci i tuoi dati
Questionario completato
Grazie per aver richiesto un appuntamento senza impegno con un nostro Consulente del Credito e Assicurativo.

Hai inserito correttamente tutti i dati necessari e a breve riceverai una e-mail con un link da convalidare per inviare i tuoi dati.
Affiliato
Studio Robassomero Sas
Via Don Marchisone, 1 10070 Robassomero (TO)

Il nostro staff


  • Daniele Manolio
    Affiliato

  • Alberto Calmasini
    Collaboratore

  • Margherita D'Agostino
    Coordinatrice
Via Don Marchisone, 1 10070 Robassomero (TO)
Zona: Robassomero-Fiano-Cafasse-Villanova Canavese-Varisella-Vallo torinese-Monasterolo
Mostra su mappa
Orari: LUN-VEN dalle 9.00 alle 12.30 e dalle 14.30 alle 20.00 SABATO 9.00-12.30 e 14.30-19.00
Affiliato
Studio Robassomero Sas
Via Don Marchisone, 1 10070 Robassomero (TO)

2026 Tecnocasa Franchising S.p.A. - P. IVA 08365160152 - Via Monte Bianco 60/A 20089 Rozzano (MI). Ogni agenzia ha un proprio titolare ed è autonoma. Privacy policy | Policy utilizzo | Cookie policy